• Startseite
  • News
  • Projekte
  • Büro
  • Stellenanzeigen
  • Kontakt
Gänßle + Hehr Landschaftsarchitekten
  • Startseite
  • News
  • Projekte
  • Büro
  • Stellenanzeigen
  • Kontakt

Dezember 14th 2021

1. Preis im Wettbewerb Neubau Außenstelle Landratsamt Landsberg am Lech

...

Read More...
Juli 1st 2021

1. Preis im Wettbewerb Neubau einer 3-zügigen Grundschule in Kiel-Gaarden

Die Neugründung der dreizügigen Grundschule reagiert auf den steigenden Schulplatzbedarf in Kiel-Gaarden. Das Plangebiet des Neubaus ist aufgrund seiner exponierten Lage auf dem Geestrücken der Förde von hoher Prägnanz. Der viergeschossige Schul...

Read More...
Mai 27th 2021

3. Preis im Wettbewerb Neubau Hallenbad Stuttgart-Zuffenhausen

Freiraumgestaltung Über den großzügigen Vorplatz werden die Besucherinnen barrierefrei zum Haupteingang geführt. Ein spannungsvoller und zugleich gut überschaubarer Freiraum bildet den Auftakt, der das Gebäude selbstbewusst inszeniert. Die Ges...

Read More...
Oktober 15th 2020

1. Preis im Ideenwettbewerb Neubau eines Bürgerhauses (Rathaus mit Museum) in Olpe

Die Außenanlagen des neuen Bürgerhauses in Olpe spiegeln den ursprünglichen „Genius loci“ wider. Nicht nur die Gestaltung, sondern auch Inhaltlich wird das Thema „Bahnhof“ in den Außenanlagen neu interpretiert. Kurze, direkte Wegeverbindu...

Read More...
Oktober 1st 2020

1. Preis im Wettbewerb für das Hopp-Kindertumorzentrum in Heidelberg

Die Idee ist ein neuer „Dreiklang“: Die beiden vorhandenen Kliniken – die Kinderklinik und das Zentrum für Kinder- und Jugendmedizin – werden um einen dritten, würfelförmigen Baukörper mit vorgesetztem Flachbau ergänzt. Dieses neue Ensem...

Read More...
September 23rd 2020

1. Preis im Wettbewerb Schul- und Sportcampus am Lützelbach

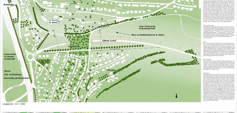
Gestalterischer Grundsatz Das Bestandsgelände, mit dem westlich angrenzenden Lützelbach und dessen Übergang in die Kulturlandschaft des Gewann Neuwiesen, sowie den landschaftlichen Freiraumelementen, der vorhandenen Schul- und Sportanlagen, mus...

Read More...
August 6th 2020

1. Preis im Wettbewerb „Neubau Feuerwehr und Bauhof“ Gemmingen

In Zusammenarbeit mit N2 Architekten PartGmbB, Fellbach Erfolg: 1. Preis Auslober: Gemeinde Gemmingen Verfahrensart: Nichtoffener Planungswettbewerb mit Teilnahmewettbewerb

Read More...
Juli 23rd 2020

1. Preis im Wettbewerb Neubau Rathaus Unterschneidheim

Die Außenanlagen des Neuen Rathauses in Unterschneidheim schmiegen sich homogen an die ausdrucksstarken Gebäudekörper an. Ein einheitlicher Pflasterbelag legt sich teppichartig über die neue Oberfläche und bildet dadurch die zugehörigen Bereich...

Read More...
März 25th 2020

1. Preis in Mehrfachbeauftragung – Baufeld Süd am Wiener Platz Stuttgart Lose 1+2 Stuttgart-Feuerbach

Die Erschließung der Freiflächen des Quartiers erfolgt über einen Zugang im Süden und einen weiteren Zugang im Norden. Die Durchquerung des Baufeldes erzielt eine gute Anbindung in die umliegenden Quartiere. Ein vielfältiges Angebot an Aufenthal...

Read More...
März 25th 2020

Anerkennung im Wettbewerb – Neubau eines Kombibades und Aufwertung des Badeparks in Wörth

Mit dem neuen Hallenbad am Standort des bestehenden Badeparks sollen Synergieeffekte gebildet werden. Das neue Bad, das auch dem Schul- und Vereinssport dienen soll, beinhaltet neben dem Schwimmangebot auch einen Saunabereich mit Freianlagen. Anstell...

Read More...
<< Previous
Next >>
  • Datenschutz
  • Impressum
© 2021 Gänßle + Hehr Landschaftsarchitekten PartGmbB
Logos by icons8